3 |
3 | 294 m²НОВАЯ ВИЛЛА В ПОЛОПЕ С ЗАХВАТЫВАЮЩИМ ВИДОМ НА МОРЕ
Расположенная в живописном городке Полоп на побережье Коста-Бланка, эта исключительная вилла предлагает захватывающие виды на горы и Средиземное море. Расположенная на участке площадью 434 м², эта недвижимость сочетает в себе современную элегантность с функциональностью, обеспечивая максимальный комфорт и стиль.
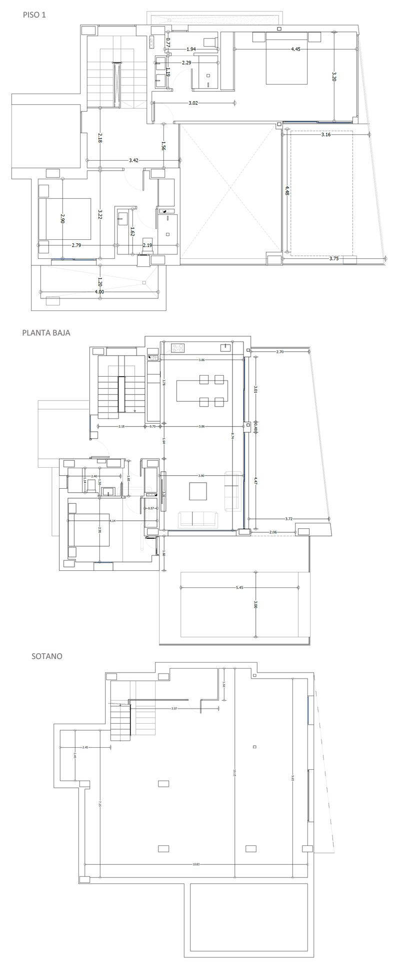
Вилла имеет общую площадь 294 м² и распределена на два этажа с дополнительным просторным полуподвалом. На первом этаже расположена светлая гостиная открытой планировки, современная кухня с островом, спальня с ванной комнатой и прямой выход на крытую и открытую террасы с панорамным видом на Полоп, Альтею и Кальоса-д'эн-Сарриа.
Наверху вы найдете две просторные спальни, две ванные комнаты и две террасы - одну крытую и одну открытую, идеально подходящие для утреннего кофе или вечернего отдыха. Полуподвал предлагает большой потенциал: его можно переоборудовать в независимую гостевую зону, помещение для отдыха или гараж, вмещающий не менее двух автомобилей.
Эта вилла отделана высококачественными материалами. Кухня полностью оборудована техникой Siemens, а ванные комнаты отделаны стильной сантехникой и имеют высококачественную отделку. Комфорт в течение всего года обеспечивается кондиционером, подогревом пола и системой горячего водоснабжения, работающей от аэротермальной технологии Panasonic. На территории виллы также предустановлена система домашней автоматизации.
Наружное пространство спроектировано для максимального комфорта и отдыха, предлагая частный пейзажный бассейн, просторные террасы, зону барбекю и красиво благоустроенный сад, которые вместе создают гармоничную среду, идеально подходящую для повседневной жизни и отдыха. Эта вилла - исключительная возможность для тех, кто ищет роскошь, уединение и захватывающие виды в одном из самых красивых районов Коста-Бланки.
| Тип |
|---|
| Вилла |
| Спальни |
|---|
| 3 |
| Ванные комнаты |
|---|
| 3 |
| m² |
|---|
| 294 m² |
| Место |
|---|
| Polop |
| Зона |
|---|
| Polop |
| Mнения |
|---|
| на море и на гору |
| Oтопление |
|---|
| Предустройство для обогревания |
| Kондиционер |
|---|
| Гараж |
|---|
| да |
| Бассейн |
|---|
| да |
| Состояние |
|---|
| новое строительство |
| Дата постройки |
|---|
| 2025 |
| Mебель |
|---|
| Частично |
| Площадь построения |
|---|
| 294 m² |
| Площадь участка |
|---|
| 434 m² |
| Тип |
|---|
| Вилла |
| Спальни |
|---|
| 3 |
| Ванные комнаты |
|---|
| 3 |
| Oтопление |
|---|
| Предустройство для обогревания |
| Kондиционер |
|---|
| Подвал |
|---|
| Камин |
|---|
| Дверь бронированая |
|---|
| Бассейн |
|---|
| да |
| Гараж |
|---|
| да |
